To main content

Проект "Е272" двухэтажного дома из газобетона

Цена проекта:
100 300 р.
Площадь помещения:
501,5 м2
Материал стен:
Газобетон
Размер дома:
18,4 м х 30,3 м
Этажность:
2 этажа
Гараж:
1
Количество спален:
4
Количество санузлов:
2
Заказать проект
Описание проекта

Проект E272 — крупный двухэтажный жилой дом площадью 501,5 м², предназначенный для комфортного проживания большой семьи. Проект ориентирован на просторные помещения, чёткое функциональное зонирование и возможность размещения дома на участке увеличенной площади.

Дом запроектирован из газобетонных блоков, что позволяет обеспечить энергоэффективность, стабильный микроклимат и надёжность конструкции при значительных объёмах здания.

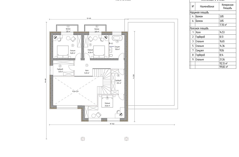
Планировочная структура дома выстроена с разделением общественных и приватных зон по этажам, что повышает комфорт повседневной жизни и уровень приватности.

  • На первом этаже размещены основные общественные пространства, ориентированные на совместное времяпрепровождение и приём гостей.
  • Второй этаж отведён под жилые помещения, формирующие приватную зону дома.
  • Проект предусматривает четыре спальни, что позволяет комфортно разместить всех членов семьи.
  • Два санузла распределены по этажам с учётом бытовых сценариев использования.
  • Гараж интегрирован в объём дома и связан с внутренними помещениями.

Габариты дома 18,4 × 30,3 м формируют выразительный архитектурный объём и предполагают размещение проекта на просторном участке с возможностью организации придомовой территории.

Архитектура дома выполнена в современном стиле с акцентом на масштаб, пропорции и функциональность. Проект может быть адаптирован под индивидуальные требования, включая корректировку планировочных решений и внешнего облика.

категории проекта
  • Газобетон
  • Двухэтажный дом
  • С гаражом
  • Современная архитектура