To main content

Проект "Е271" трехэтажного дома из газобетона

Цена проекта:
41 200 р.
Площадь помещения:
206,2 м2
Материал стен:
Газобетон
Размер дома:
10,6 м х 12,5 м
Этажность:
3 этажа
Гараж:
1
Количество спален:
1
Количество санузлов:
2
Заказать проект
Описание проекта

Проект E271 — компактный трёхэтажный жилой дом площадью 206,2 м², рассчитанный на размещение в условиях ограниченного участка. Вертикальная компоновка позволяет получить полноценный набор жилых и функциональных помещений при относительно небольшом пятне застройки.

Дом запроектирован из газобетонных блоков, что обеспечивает хорошую теплоизоляцию, энергоэффективность и комфортный микроклимат при круглогодичном проживании.

Архитектурная концепция проекта строится на функциональном распределении этажей, где каждый уровень выполняет чётко определённую роль и не дублирует сценарии использования других уровней.

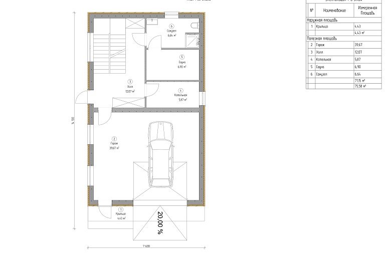
  • Первый этаж используется как общественно-хозяйственная зона и может включать входную группу, технические помещения и гараж.
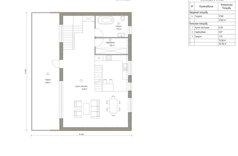
  • Второй этаж формирует основное жилое пространство с гостиной и кухней, ориентированными на повседневное проживание.
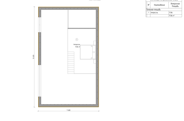
  • Третий этаж отведён под приватную зону и включает спальню, обеспечивающую уединение и тишину.

В проекте предусмотрено два санузла, распределённых по этажам, что повышает удобство эксплуатации дома и позволяет избежать пересечения бытовых сценариев.

Габариты дома 10,6 × 12,5 м делают проект подходящим для застройки на узких или вытянутых участках, а также в условиях плотной индивидуальной застройки.

Архитектура дома выполнена в современном стиле с лаконичными формами и вертикальными пропорциями, подчёркивающими этажность здания. Проект ориентирован на рациональное использование площади и практичность повседневного проживания.

категории проекта
  • Дом из газобетона
  • Современный стиль
  • С гаражом