To main content

Проект "Е267С" двухэтажного дома из газобетона

Цена проекта:
47 500 р.
Площадь помещения:
237,4 м2
Материал стен:
Газобетон
Размер дома:
15,1 м х 10 м
Этажность:
2 этажа
Количество спален:
6
Количество санузлов:
3
Заказать проект
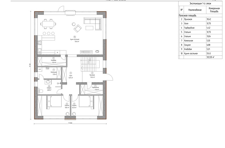
Описание проекта

Двухэтажный жилой дом площадью 267 м², разработанный для комфортного постоянного проживания семьи. Проект ориентирован на чёткое зонирование, просторные помещения и рациональное использование площади.

Дом выполнен из газобетонных блоков, что обеспечивает энергоэффективность, надёжность конструкции и комфортный микроклимат при круглогодичном проживании.

Проект включает:

  • Просторную гостиную, объединённую с обеденной зоной и ориентированную на участок.
  • Кухню-столовую, удобную для повседневного использования и приёма гостей.
  • Приватную зону спален, размещённую на втором этаже.
  • Несколько санузлов, распределённых по этажам для удобства семьи.
  • Технические и вспомогательные помещения, скрытые от основной жилой зоны.

Планировочная структура дома построена на разделении дневной и приватной зон: общественные помещения размещены на первом этаже, а спальни — на втором. Такое решение обеспечивает комфорт, приватность и удобные сценарии повседневной жизни.

Архитектура дома выполнена в современном стиле с лаконичными формами и сбалансированными пропорциями. Проект хорошо подходит для размещения на участках различной формы и может быть адаптирован под индивидуальные требования заказчика.

категории проекта
  • Двухэтажный дом
  • Газобетон
  • 260–280 м²
  • Современный стиль
  • Для семьи