To main content
WhatsApp/Telegram
Телеграм Чат
WhatsApp
Хотите чтобы мы перезвонили?
Оставьте свои контакты, наш менеджер свяжется с вами в течение 15-ти минут
РАССЧИТАТЬ СТОИМОСТЬ
Оставьте свои контакты, наш менеджер свяжется с вами в течение 15-ти минут
ХОТИТЕ ОБСУДИТЬ СВОЙ ПРОЕКТ?
Оставьте свои контакты, наш менеджер свяжется с вами в течение 15-ти минут
Я согласен с политикой конфиденциальности
Отправить
Каталог проектов
Услуги
Дизайн интерьеров
Проекты инженерных систем
Архитектурно-строительный проект
Архитектурный проект
отзывы
о компании
контакты
+7 (960) 100-77-66
Обратный звонок
Каталог проектов
Услуги
Дизайн интерьеров
Проекты инженерных систем
Архитектурно-строительный проект
Архитектурный проект
Стоимость
Отзывы
О компании
Контакты
+
7
9
6
0
1
0
0
7
7
6
6
×
Заголовок по умолчанию
Отправьте нам свои контактные данные. Мы перезвоним, чтобы уточнить все детали
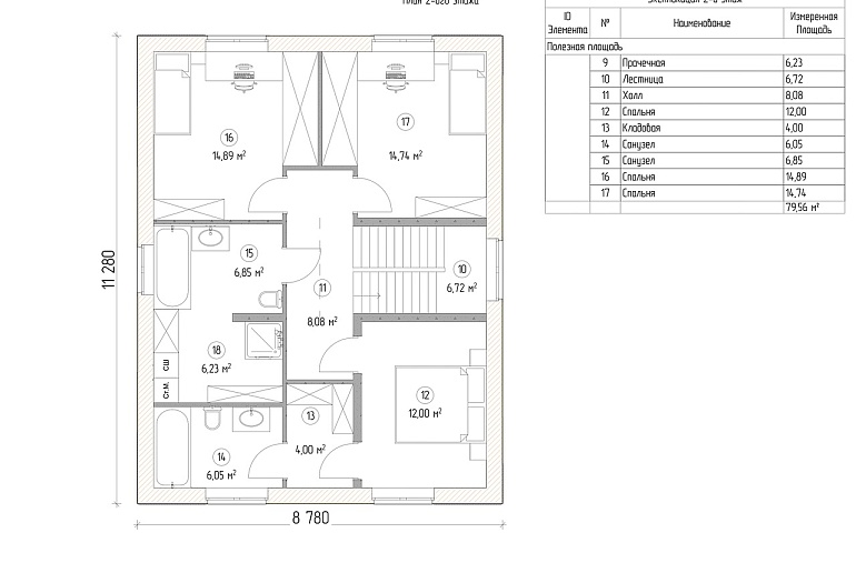
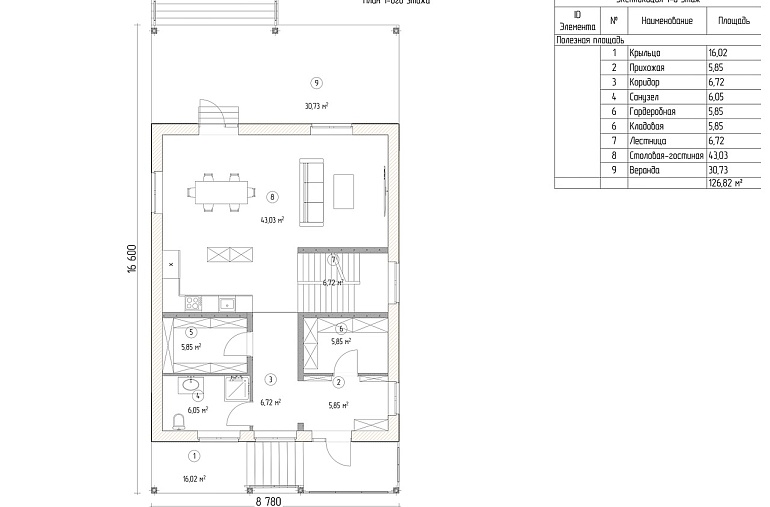
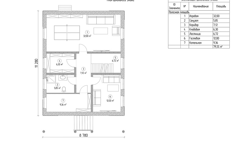
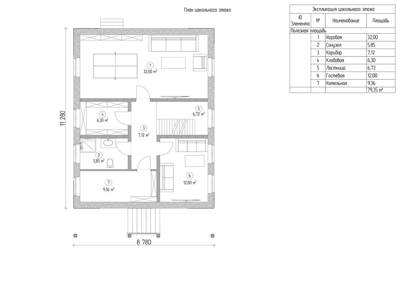
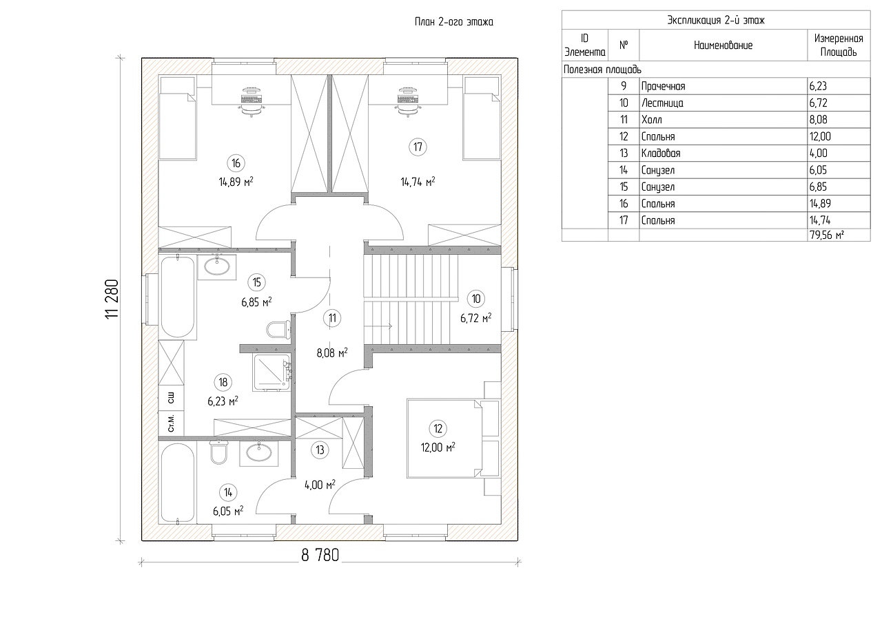
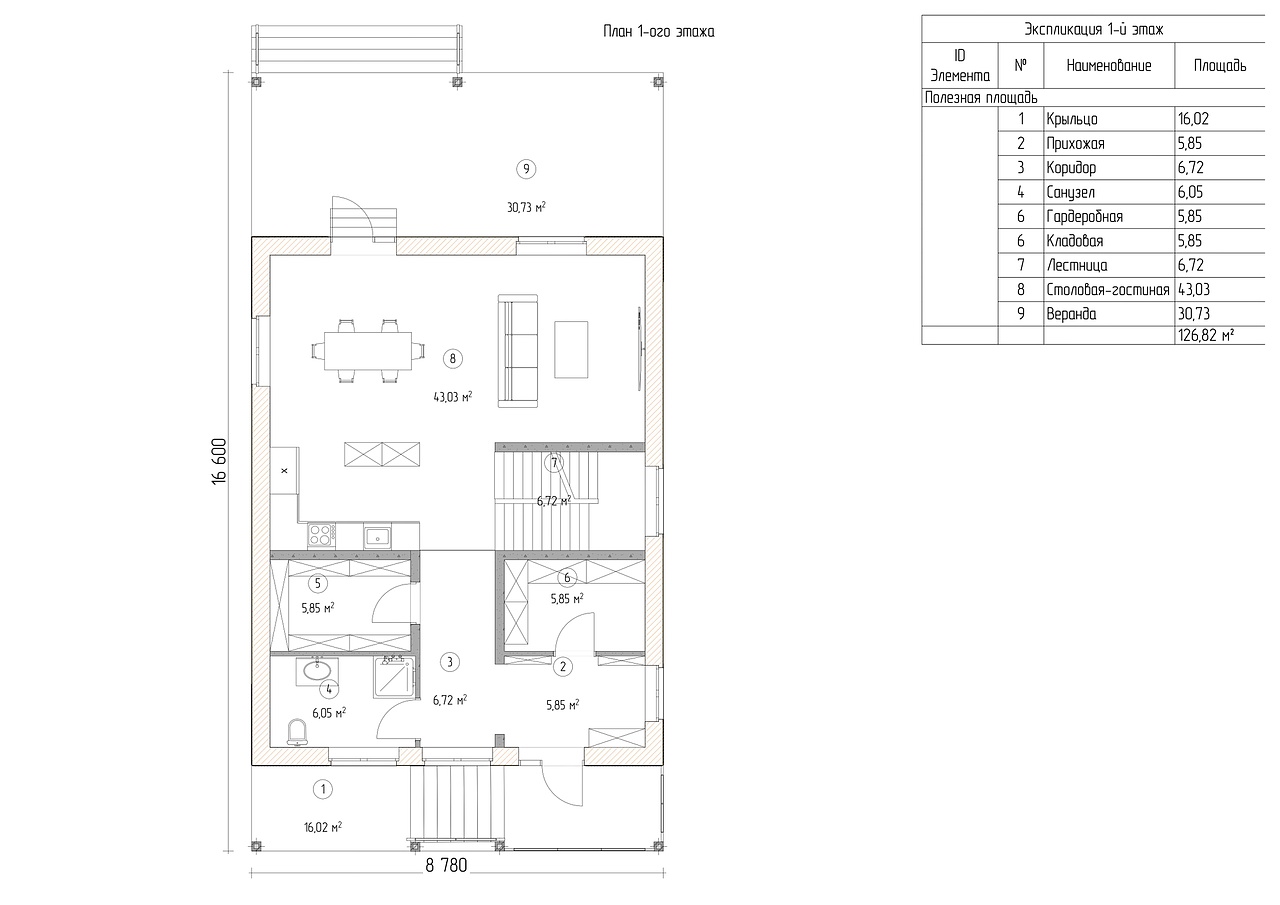
Проект "E256"
Цена проекта:
57 140 р.
Площадь помещения:
285,7 м
2
Материал стен:
керамический блок
Размер дома:
16 м х 8,7 м
Этажность:
3 этажа
Количество спален:
3
Количество санузлов:
4
Заказать проект