To main content
WhatsApp/Telegram
Телеграм Чат
WhatsApp
Хотите чтобы мы перезвонили?
Оставьте свои контакты, наш менеджер свяжется с вами в течение 15-ти минут
РАССЧИТАТЬ СТОИМОСТЬ
Оставьте свои контакты, наш менеджер свяжется с вами в течение 15-ти минут
ХОТИТЕ ОБСУДИТЬ СВОЙ ПРОЕКТ?
Оставьте свои контакты, наш менеджер свяжется с вами в течение 15-ти минут
Я согласен с политикой конфиденциальности
Отправить
Каталог проектов
Услуги
Дизайн интерьеров
Проекты инженерных систем
Архитектурно-строительный проект
Архитектурный проект
отзывы
о компании
контакты
+7 (960) 100-77-66
Обратный звонок
Каталог проектов
Услуги
Дизайн интерьеров
Проекты инженерных систем
Архитектурно-строительный проект
Архитектурный проект
Стоимость
Отзывы
О компании
Контакты
+
7
9
6
0
1
0
0
7
7
6
6
×
Заголовок по умолчанию
Отправьте нам свои контактные данные. Мы перезвоним, чтобы уточнить все детали
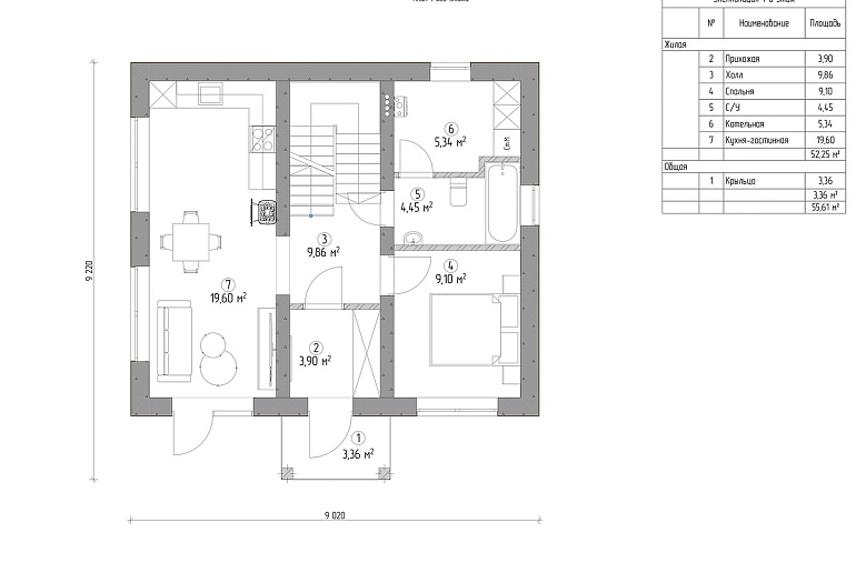
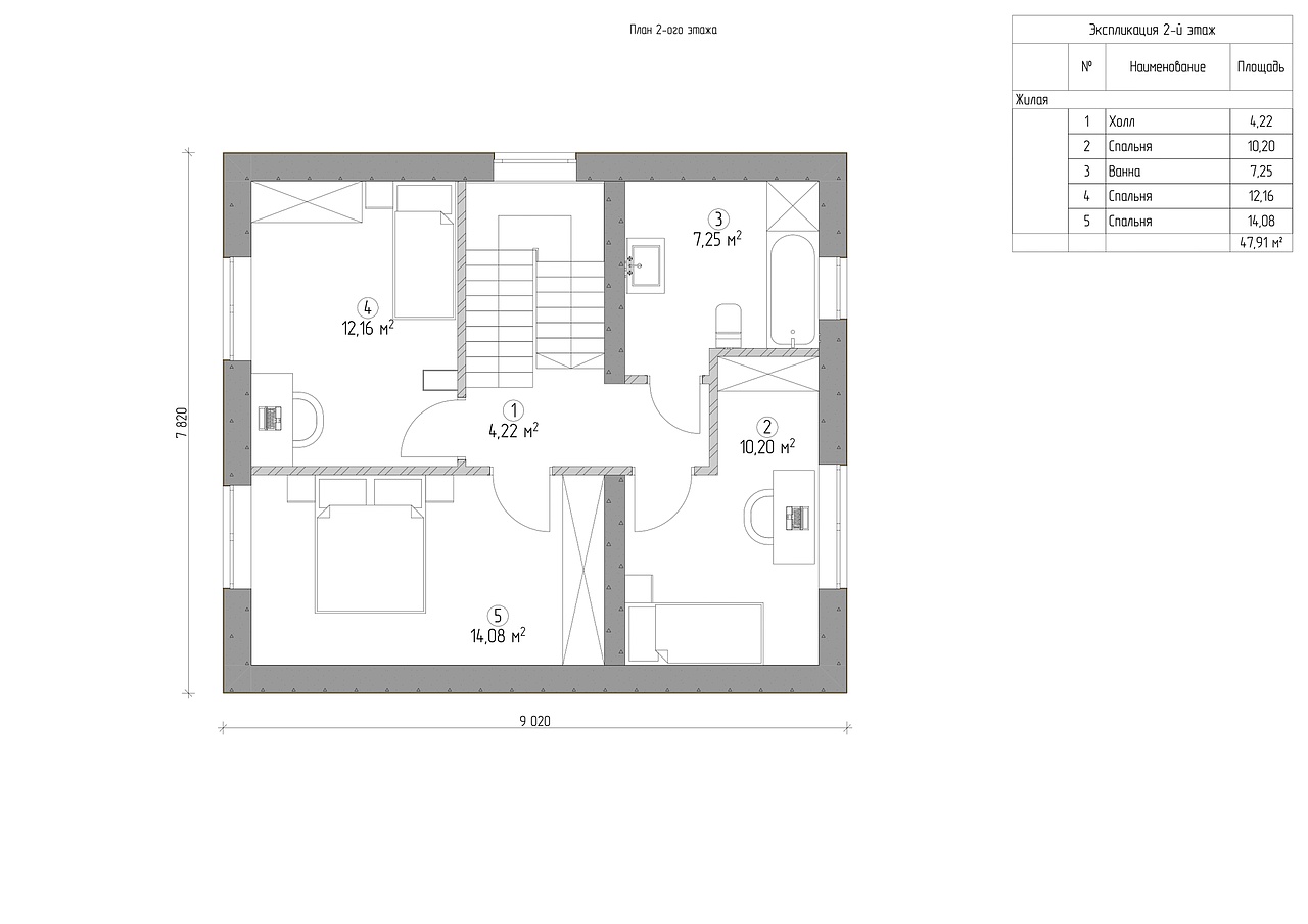
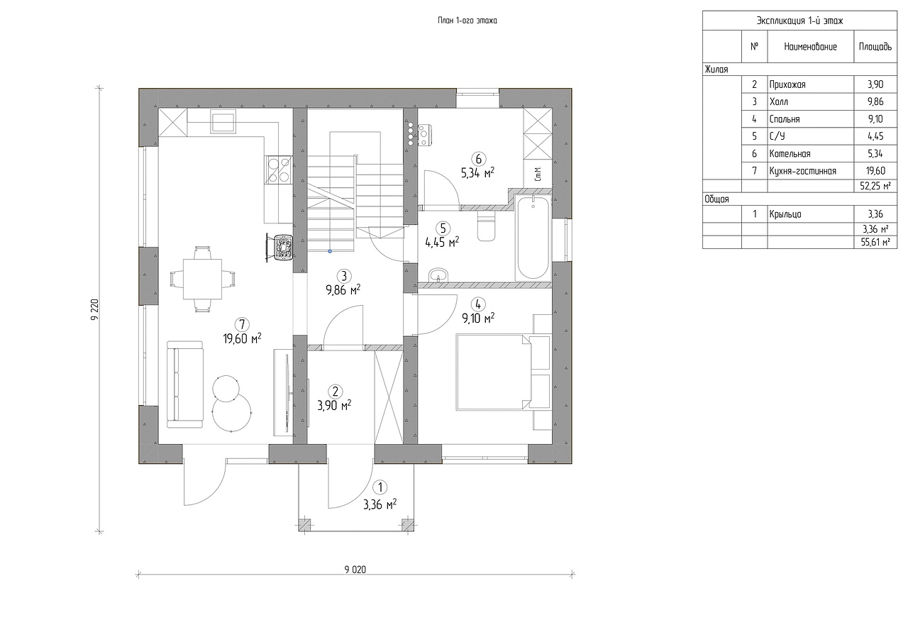
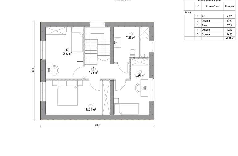
Проект "E251"
Цена проекта:
25 000 р.
Площадь помещения:
100 м
2
Материал стен:
газобетонный блок
Размер дома:
9 м х 7,8 м
Этажность:
2 этажа
Количество спален:
4
Количество санузлов:
2
Заказать проект