To main content

Проект "Е064С" одноэтажный дом из газоблока

Цена проекта:
31 000 р.
Площадь помещения:
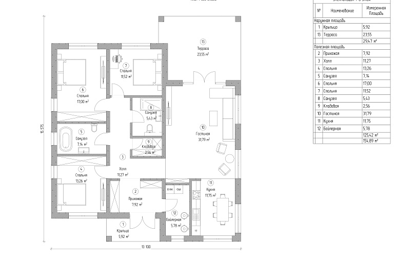
154,8 м2
Материал стен:
Газоблок
Размер дома:
13,1 м х 15,5 м
Этажность:
1 этаж
Количество спален:
3
Количество санузлов:
2
Заказать проект
Описание проекта

Проект одноэтажного дома из газоблока площадью 154,8 м² — это современное решение для комфортной жизни семьи из 3–5 человек. Компактные размеры дома 13,1 × 15,5 м позволяют удобно разместить его на большинстве участков, сохранив пространство для двора, террасы или зоны отдыха.

Дом из газоблока отличается хорошими теплоизоляционными свойствами, долговечностью и оптимальной стоимостью строительства. Благодаря прочности и энергоэффективности этого материала такие дома подходят для круглогодичного проживания и обеспечивают комфортный микроклимат в любое время года.

Планировка проекта продумана для повседневной жизни семьи. В доме предусмотрены три спальни, что позволяет организовать отдельные комнаты для родителей и детей, а также выделить пространство под кабинет или гостевую комнату. Два санузла делают проживание более удобным и функциональным.

Проект одноэтажного дома из газоблока сочетает рациональную архитектуру и удобную планировку, создавая комфортное пространство для жизни, отдыха и общения всей семьи.

категории проекта
  • одноэтажный дом
  • дом из газоблока
  • дом 150 м²
  • дом с 3 спальнями
  • дом с 2 санузлами