To main content

Проект "Е063С" одноэтажного дома из керамического блока

Цена проекта:
46 000 р.
Площадь помещения:
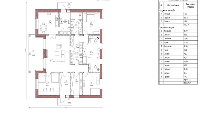
230,4 м2
Материал стен:
Керамический блок
Размер дома:
15,4 м х 20 м
Этажность:
1 этаж
Количество спален:
3
Количество санузлов:
2
Заказать проект
Описание проекта

Проект E063S — одноэтажный жилой дом площадью 230,4 м², рассчитанный на комфортное проживание семьи и размещение на участке с достаточной площадью. Проект ориентирован на просторные помещения, удобную геометрию и спокойный ритм повседневной жизни без вертикальных перемещений.

Дом запроектирован из керамического блока, что позволяет обеспечить высокие показатели тепло- и звукоизоляции, прочность стен и стабильный микроклимат в жилых помещениях. Материал хорошо подходит для капитального строительства и долговечной эксплуатации.

Планировочная структура дома выстроена вокруг центральной дневной зоны и изолированных жилых помещений, что делает проект удобным для постоянного проживания.

  • Гостиная объединена с обеденной зоной и имеет прямую связь с участком.
  • Кухня расположена таким образом, чтобы быть функциональной для повседневного использования и приёма гостей.
  • Три спальни формируют приватную часть дома и позволяют комфортно разместить всех членов семьи.
  • Два санузла распределены с учётом бытовых сценариев и удобства использования.

Габариты дома 15,4 × 20 м позволяют рационально разместить здание на участке и сохранить баланс между застройкой и свободным пространством вокруг дома.

Архитектурное решение выполнено в современном стиле с акцентом на горизонтальные пропорции и спокойную пластику фасадов. Проект может быть адаптирован под индивидуальные требования, включая изменения планировки и внешнего облика.

Проект E063S подойдёт для семьи, которая рассматривает одноэтажный дом увеличенной площади с тремя спальнями и комфортной планировкой для постоянного проживания.

категории проекта
  • Одноэтажный дом
  • Керамический блок
  • 3 спальни