To main content

Проект "Е061" одноэтажного дома из газобетона

Цена проекта:
26 000 р.
Площадь помещения:
209,7 м2
Материал стен:
Газобетон
Размер дома:
12,9 м х 18 м
Этажность:
1 этаж
Количество спален:
3
Количество санузлов:
2
Заказать проект
Описание проекта

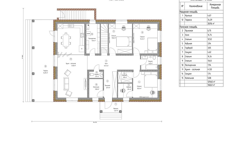
Проект Е061 — одноэтажный жилой дом площадью 209,7 м², разработанный для комфортного постоянного проживания семьи. Дом спроектирован с упором на удобную планировку, естественное освещение и рациональное использование пространства.

Дом выполнен из газобетонных блоков, что обеспечивает энергоэффективность, надёжность конструкции и комфортный микроклимат при круглогодичном проживании.

Проект включает:

  • Просторную гостиную с панорамным остеклением и визуальной связью с участком.
  • Кухню-столовую, логично объединённую с дневной зоной дома.
  • Три изолированные спальни, обеспечивающие приватное пространство для каждого члена семьи.
  • Два полноценных санузла, повышающие комфорт повседневного использования.
  • Технические и вспомогательные помещения, скрытые от основной жилой зоны.

Планировочные решения построены на чётком разделении дневной и приватной зон, отсутствии проходных комнат и удобных маршрутах внутри дома. Одноэтажное исполнение делает проект особенно удобным для семей с детьми и тех, кто предпочитает дом без лестниц.

Архитектура дома выполнена в современном стиле с лаконичными формами и сбалансированными пропорциями. Проект хорошо адаптируется под различные участки и может быть доработан под индивидуальные требования заказчика.

Проект подойдёт для семьи, которая рассматривает современный одноэтажный дом из газобетона площадью около 200–220 м² для комфортного постоянного проживания.

категории проекта
  • Частный дом
  • Дома из газобетона
  • Дома от 200 м²
  • Одноэтажные дома
  • Дом с панорамными окнами
  • Современный стиль